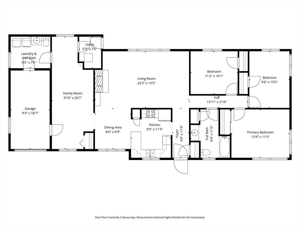
Description
Enjoy the ease of one level living moments from charming North Reading Center offering a small town atmosphere, historic library, corner country store and easy access to the High School and various other amenities including sledding on the common! Pull into the attached garage and easily access this well maintained property featuring spacious, open living areas, 3 large bedrooms, 1 & 1/2 baths, plentiful closet space and luxurious radiant heat! Additional highlights include a front entry hall with coat closet, a custom brick, wood burning fireplace, oak flooring, replacement windows and an updated fully applianced kitchen with peninsula adjacent to the dining area.The wood deck overlooks the expansive backyard plus there's a large shed attached to the back of the house.The huge attic is accessible from a pull down staircase in the garage.Close to Batchelder Elementary,Ipswich River Park and Harold Parker.TITLE V APPROVED!
-
3BEDS
-
0.35ACRES
-
1BATHS
-
11/2 BATHS
-
1,617SQFT
-
$371$/SQFT
School Information
Description
Enjoy the ease of one level living moments from charming North Reading Center offering a small town atmosphere, historic library, corner country store and easy access to the High School and various other amenities including sledding on the common! Pull into the attached garage and easily access this well maintained property featuring spacious, open living areas, 3 large bedrooms, 1 & 1/2 baths, plentiful closet space and luxurious radiant heat! Additional highlights include a front entry hall with coat closet, a custom brick, wood burning fireplace, oak flooring, replacement windows and an updated fully applianced kitchen with peninsula adjacent to the dining area.The wood deck overlooks the expansive backyard plus there's a large shed attached to the back of the house.The huge attic is accessible from a pull down staircase in the garage.Close to Batchelder Elementary,Ipswich River Park and Harold Parker.TITLE V APPROVED!
The property listing data and information set forth herein were provided to MLS Property Information Network, Inc. from third party sources, including sellers, lessors and public records, and were compiled by MLS Property Information Network, Inc. The property listing data and information are for the personal, non commercial use of consumers having a good faith interest in purchasing or leasing listed properties of the type displayed to them and may not be used for any purpose other than to identify prospective properties which such consumers may have a good faith interest in purchasing or leasing. MLS Property Information Network, Inc. and its subscribers disclaim any and all representations and warranties as to the accuracy of the property listing data and information set forth herein. Data last updated 2026-03-10T18:03:59.84.
